叭楼,新房带看,二手房代办过户,望京二手房精选房源,您置业的小管家。
3月28号,上海中海的顺昌玖里开盘,以196.5亿元的销售额刷新全国开盘纪录。
这个盘均价17.2万/平,套均总价4000万,一时间“富人排队抢房”的消息刷爆整个地产圈。
阳春之际,市场正需要这样的热销来注入信心。毕竟信心是会传导的。
北京中海,这个周末也被业内高度关注,五盘齐开的消息早早放出,周末亮出成绩单,合计90.6亿。

朱辛庄中海寰宇未来,30亿;南苑中海公元里,12亿;园博园永定玖里,8亿;石景山寰宇天下天境,20亿;郭公庄丰和叁号院,20.6亿。
不算理想,但也是意料之中。没有超级地段的项目,也没有倒挂盘,很难打出最强战绩。
至于90.6亿的数字也有很多人质疑,到底真假,咱们关注后期网签不会骗人!
每个月我们都会给大家同步建委数据,蹲住!3月版已出炉⬇️
北京在售新盘最新网签数据(截止3.31),后台回复0402可获取。
这五个盘里面,寰宇未来、公元里、永定玖里都有测评过,戳蓝字可自行复习。
今天说说丰和叁号院!中海大名鼎鼎的藏锋系。
NO.1
2023年10月底,中海以54.4亿拿下郭公庄614等地块,楼面价6.25万/㎡,销售指导价是9.2万/㎡。
这块地就是现在的丰和叁號院。

项目位置在南四环边1.5公里左右,属于丰台科技园板块。
往南500米左右,是地铁9号线和房山线交汇的郭公庄站;往北1公里左右,是丰台科技园站。
这个位置近产业,有环线优势,且配套资源丰富,城市界面也比较完善。
在项目1公里内燕欣生活广场、万达广场、永旺梦乐城等商场;3公里内有首都医科大学附属北京天坛医院(三甲)。
教育方面,3公里内有21世纪幼儿园、丰台八中、首都师范大学附属丽泽中学(南校区)、丰台区怡海中学等学校。

目前板块内的改善二手房,中海九号公馆挂牌均价8.1万/平米左右,其余刚需盘面积段较小,挂牌均价6.9万/平米左右。

对比同环线新盘,青塔板块指导价8.5万/平米,新宫8.3万/平米,四环内的大红门9.5万/平米…
近产业的郭公庄9.2万/平的定价,合理但不低了。
NO.2
因为价格摆在这,产品打造上必须要“德位相配”,不然容易砸手里。
我们看到,丰和叁号院确实很卖力,比如在业内叫绝的甲叁外立面之上,丰叁外力面还有调整升级,再比如社区内打造1.5万平的湖景园林…

项目占地面积约3.96万㎡,建筑面积13.14万㎡,容积率2.2,东区共规划7栋住宅楼,西区还有三栋合院,共415户。
看下方户型分布图,东西两区由1.5万平大湖园林隔开。这个景观是个亮点,但也要提醒大家这样打造,也是因为地下有双轨穿过,为防震感不宜建房,所以也算是为了平衡。

西区的三栋合院和咱几乎没什么关系,重点看东区,其中4栋25层的高层,两梯两户;3栋是8层的洋房,一梯两户。
户型是建面约168㎡-262㎡的全四居户型,总价区间约1500-2800万之间。
来看看户型图:

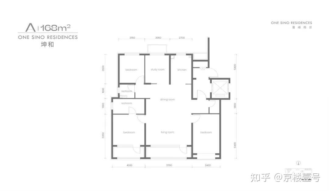
建面约168㎡四居
入户双玄关,客厅面宽约5.7米,格局方正,南北通透,南向外置阳台+北向阳台,黑科技拉满;总价约1500万。

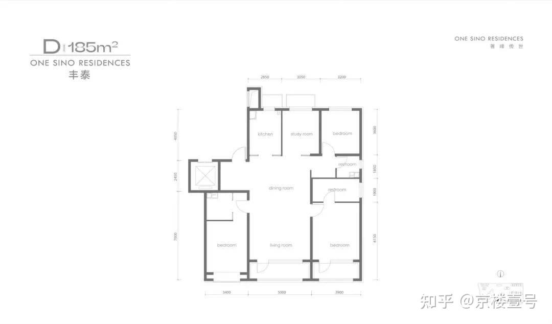
建面约185㎡四居
客厅面宽5米,南向是内置阳台,格局分布和168平类似,总价约在1700万。

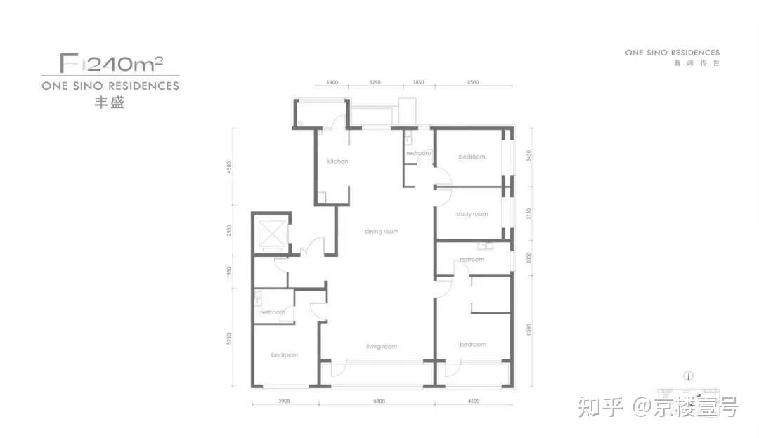
建面约240㎡四居
客厅面宽6.8米,LDK一体,公共区域非常敞亮;南向双套房,两次卧分布在东侧,采光及尺度都很够用,总价约在2200万。
整体的户型设计,充分发挥中海一贯的优势,并且阳台配置也很给力。
产品是好产品,不过1500-2500万的总价段,北京可选空间不少…
光南城,南二环/三环几乎可以随便挑,往东往北稍微也能看看,所以丰叁压力也不小。
市场好,产品好,地段好,有对手也能随便卖;市场不好,就不一样了..
声明:本站内容来源于网络或叭楼会员发布,叭楼只作为信息发布平台,版权归原作者所有,本站不承担任何图片、内容、观点等内容版权问题,如对内容有歧义,可第一时间联系本站管理员发送邮件8309272@qq.com或者扫码微信沟通,经核实后我们会第一时间删除。




















暂无评论内容