叭楼,新房带看,二手房代办过户,望京二手房精选房源,您置业的小管家。


哈喽大家好,我是血拼哥。
截止到4月15号,新房网签1331套,二手房网签5579套。
从一线地产从业者的反馈来看:市场观望的情绪依旧更浓了。
大部分房东依旧选择割肉卖房,当降价成为常态时,大家对买房的态度是更谨慎的。

对于当下的购买建议,血拼哥建议大家只记住一条准则:
新房挑着买,二手捡漏买。
对于新盘的要求必须时多边形战士,现在市场上买了不亏的新盘其实很少。
二手房多多比价,今年开年挂牌量已经接近15万,机会有很多。
最近亦庄又出了个临铁盘,很多人已经期待很久了,血拼哥给大家测评下
No.1
北神树上新,临铁200米
开年2月1日,华润置地亿75.38亿拿下亦庄新城0503街区YZ00-0503-B19R1、B19A1、B19A2、B25B1北神树地块。
指导价:期房6.5万/㎡、现房6.7万/㎡,±8%。
3月9日,华润公布北神树地块项目案名为「北京润府」,预计4月底开盘。
位于亦庄板块,环线位置在5至六环间,距17号线北神树地铁口仅200米。

未来17号线全线开通后,能实现3战抵达三环、7战到达国贸,便捷通达望京、三里屯。

整个地块需配建7680㎡体育用地,3200㎡教育用地,6600㎡公园绿地,146432㎡商业用地混合基础设施用地(其中有商业功能建筑+公交场站+社会停车场建筑规模),住宅部分建面约174785.24㎡。
商业混合用地目前看来基本确定会建华润万象汇。

No.2
改善户型,97平起
项目共规划18栋住宅楼,8-18层的高层+洋房,容积率2.5,控高60米。
规划户数约1386户,户型面积段约为99-177㎡,99㎡、109㎡、129㎡、133㎡、157㎡、177㎡、,得房率约75%-83%。
指导价6.6万/㎡,精装修,总价区间600万-1200万左右。
首期开盘楼栋包括8#-10#-11#-14#-15#-17#-20#-21#,共8栋。

99㎡三居,南向两面宽,缺角严重。
做到了双卧室朝南,不过客厅并不朝南,并不通透,东西向的客厅也不实用,冬夏室内温度也是个问题,空间分布上还有严重的面积浪费。

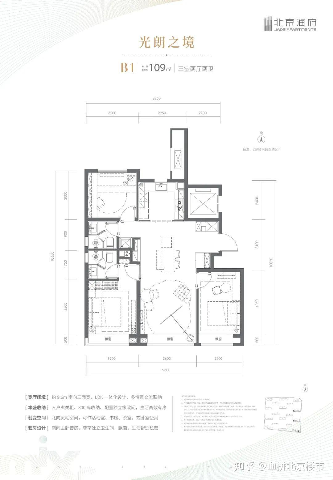
109㎡三居,南向三面宽,不懂为什么户型图放上厨房前的赠送面积?
有独立入户玄关,但是从玄关就已经开始有面积浪费;LDK一体化也没对齐;勉强算南北通透,但厨房的窗户又很小,中规中矩吧。

129㎡四居,3+1成长型户型,南北通透。
户型整体做的还行,稍微偷了点飘窗面积。不过如果把北向可变空间做成卧室的话,就不算通透了,不过大部分开发商也都这么处理,也是能接受范围。

至于133㎡以上的户型,总有或多或少的问题,真心建议开发商好好抄抄别家作业。
唯一的亮点可能就是赠送面积,不过全都在飘窗上下功夫,就很普通。

No.3价格有优势吗?
最后先说下配套,教育有明显的缺乏问题:地块西北角是12年一贯制教育用地,目前已经确定规划,现处于开发阶段,教育资源要等落位。
商业上项目4公里内无大型购物中心,南侧有商业配建地块,项目交房时估计也快开了。
目前能看得见摸得着的配套优势,其实就是临铁。

还有个问题是附近约2公里内有个卫生垃圾填埋场,占地32.5公顷,天气炎热的话,可能会有气味。
随着经开区宜业宜居绿色城区的建设,该垃圾填埋场已经封场,也基本治理得差不多了,估计影响不大。

除此之外,附近二手房集中在嘉创路以西,二手挂牌价格区间在4-8万左右,而过去几年板块内二手房价格几乎没什么变化。

目前北京润府指导价单价6.5万,处在北神树的位置上,往北一站的十八里店目前已经卖到7.8-8万了,而项目再往南3站的嘉会湖离地铁1.5公里要卖5.8万。
价格上刚好弥补了17号线的空挡,而且17号线临铁优势,国贸、亦庄资源都能享受到。
户型上两个基础户型夸不出来,都有明显的问题,600万左右做成这个品质,其实户型做的实在太保守了。
大户型中规中矩,但瞄准改善客群其实更难卖。毕竟朝阳的改善选择范围更多,亦庄的改善几乎不会选择这里。
开发商户型设计的太保守了,祝他成功吧。
声明:本站内容来源于网络或叭楼会员发布,叭楼只作为信息发布平台,版权归原作者所有,本站不承担任何图片、内容、观点等内容版权问题,如对内容有歧义,可第一时间联系本站管理员发送邮件8309272@qq.com或者扫码微信沟通,经核实后我们会第一时间删除。




















暂无评论内容