
2023年4月8日,“北京红星美凯龙春季大宅别墅设计展”正式启幕,设计展聚焦北京区域的大宅和别墅,几十位设计大咖带来的百余套设计作品,于红星美凯龙北京至6 d % E尊Mall陆续亮相中,2023年5月31日前,人们尽可享受一场设计盛宴。
截止2023年,红{ m ; i 5 3 0 y星美凯龙北京至尊Mall创立17载,始终以“国际轻奢新主义”定义京城家居生活,秉承“优质、高效、便捷”的服务宗旨,为消费者展示来自国际顶尖的家居生活方式,打造至尊级的购物体验。
为了让设计的美好得到更大范围的传递,搜狐焦点家居和红星H r L a Z美凯龙作为主办方,开启“北京红星美凯龙春季大宅别墅设计展”线上巡展。本期带来设计师张涓的设计项目林语山悦,+ j ( = f感受其暖灰色调与深色木交融下的刚健明朗的生8 O } l活面貌。

张涓
Zhang Juan
无域空间设计咨询有限公司
联合创始人/软装设计总监
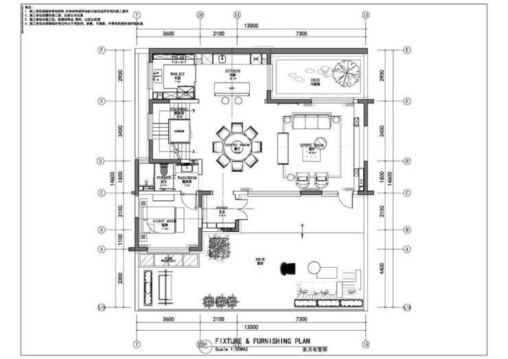
项目地址:河北张家口
项目类型:别墅
项目面积:380平米
室内背景使用暖灰色调& . + | n 7 3 g,并以深色木作为依托,呈现出刚健明朗的生活面貌。软装的暖性色调,一点一点的点缀在这“山林”之间,让人y @ k ^ 6 r ;产生回归山林生活的感动。


不同于城市中迅速、高效的生活节奏k w B J i,在这里我们a ! K ! 1 _似乎多@ ] \ N ] ) / Z D了u B 4 U g : N K些耐性,直觉也变得更加敏锐,可以体会出自然与生活的细微之处。
空间格局上体现出独立空间的奢华属性,套房及娱乐属性的配置在室内中均有体现。


餐厅和客厅功能被安P k u A置e * t 2 S N o I在一个敞开的大空间中,视野开阔。

对主人自己的起~ z g 7 a y E P居房间,在功能上尽量满足其功能的使用,在有限空间内做到生活、喜好的最大利用化,能感受到这里是让人自由随性! \ v P = ! ;生活的最佳场所。

中西6 f & Z L u `厨的合理分布则把新兴的生活方式纳入进来,同时配置客房以满足客人留宿需求。

来到这里,并没有与现代生活的生硬切割,而是多了与新传统生活方L 1 V B e a R式的深度理解。



▲平面图

▲实景图

搭建设计师、品牌与商户的沟通平台,
向大众传递X S ( ! – & j美和高S Z g N c U品质家居生活方式!
4.8-5.31,来”红星美凯龙北京至尊Mall”,
打i b # d卡“北京红星美凯龙春季大宅别墅设计展”!
您当前使用的浏览器版本过低,可能存在安全风险,建议升级浏览器,或者用以下浏览器浏览声明:本站内容来源于网络或叭楼会员发布,叭楼只作为信息发布平台,版权归原作者所有,本站\ a ( g 4 z K h t不承担任何图片、内: U _ L +容、观点等内容版权问题,如对内容有歧义,可第一时间联系本站管理员发送邮件8309272@qq.com或者扫码微信沟通,经核实后我们会第一时间删除。



















暂无评论内容