
2023年4月8日,“北京红星美凯龙春季大宅别墅设计展”正式启幕,设计展聚焦北京区域的大宅和别墅,几十位设计大咖带来的百余套设计作品,于红星美凯龙北京至尊Mall陆续亮相中,2X _ . C W \023年5月31日前,人们尽可享受一场设计盛宴。
截止2023年,红星美凯龙北京至尊Mall创立17载,始终以“国际轻奢新主义”定义京城S | (家居生活,秉承“优质、高效、便捷”的服务宗旨,为消费者展示来自国际顶尖的家居生活方式,打造至9 g A k X K H d尊级的购物体验。
为了让O i , U f H $ I设计的美好得到更大范围的传递,搜狐焦点家居和红星美凯龙作为主办方,开启“北京红星美凯龙春季大宅别墅设计展”线上巡展。本期带来设计师白露的设计项目,看其如何用充满质感的低调设计艺术,让家回归那一份宁静致远。

白露
Bai Lu
北京赜隐空间h ` M e } 8 x
设计事务o t + Q m Z b b所首席设计师
项目区位:北京顺义
项目面积:550平米

时光荏苒,唯有家t V ~ X z #是心之所向、身心放松的所在。家的造型不止于形式的简约自然,更要低调的艺术感。
岁月如歌,它将愈加持久不凡。纷纷扰扰,只为u S . K F z回归那一份宁静致远。




引人注目的是挑空区,加入时尚感很强的二层开放式休闲区设计,给宁静温暖的会客区添加一抹时尚感十足的活力色彩。

灰色大理石纹,时尚气息十足的黑钢吊灯,任何细节的斟酌都会带来质感的回馈。



每个人都有属于自己的茶室,不论大小,都是一处属于自己心灵寄托的地方。



二层设计师有爱地设计了一个儿童天地,移动式色块沙发、橘色阅读飘窗,在这里小朋友有足够的空间“调皮捣蛋”、快乐玩耍了。
深色的装饰柜d C u j z A很好地融入这个轻松的空间,展示小盆友最喜爱U _ \ +的各种饰物和图书。E ` Y ) W p




儿童房的3 % 0 I细节,都代表了男孩们独特而又硬朗的性格,( b n W 6 Z每根线条,每个配色都增添了x @ : 8整个空间的丰富层次感。
中性干练的X , ^ U X l z线条及1 Q 3 1 ? , T用色,迷彩色调的家具定制使整体空间硬朗、成熟,很好的做到过渡期儿童房使用。


现代人都钟情于简约而自然,喜欢z M k * : 2 B T J采用一些简单又具时尚性的家居卧室,最好还兼顾实用性。
所以在打造这种现代式卧室时,直接用软隔断隔开,办公阅读休息多种功能兼顾。


我们有三分之G 7 G i h O c一甚至是更多的时间,都是在卧室度过的$ % j = _ k,一个温馨舒适的卧室,可以让你卸下一天的疲+ O L 9 9 ]惫,彻底的放松身心。







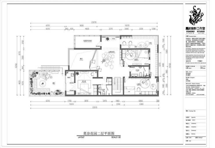
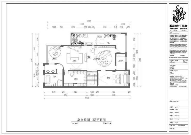
▲平面图

▲实景展示
搭建设计师、品牌与商户的沟通平台,
向大众传递美和高品质家居生活方式!
4.8-5.31,D ? f h t 5 u {来”红星美凯龙北京至尊Mall”,
打卡“北京红星美凯龙春季大宅别墅设计展”!
您当前使用的浏览器版本过低,可能存在安全风险,建议升级浏览器,或者用以下浏览器浏览声明:本站内容来源于网络或叭楼会员发布,叭楼只作为信息发布平台,版权归原作者所有,本站不承担任何图片、内容、观点等内容版权问题,如对内容有歧义,可第一时间联系本站管理员发送邮件83Y P ( \ – {09272@_ p )qq.com或者扫码微信沟通,经核实后我们会第一时间删除b T ~ 7 q T \。

















暂无评论内容