在北京买房,是很多北漂年轻人的梦想。但随着北京房价的持续上涨,对于年轻人而言,买房成了一件越来越困难的事情。因为年轻人不光要兼顾通勤,同时还对生活有相对高的要求,这也是市区老破小逐渐被年轻人“弃选”的Q W + p M _ G原因。
市区老破小太破,CBD附近的新房又太贵M 5 g,这就使产业圈的外溢板块进入了大家的视野,比如西南方向丽泽辐射范围Q A 7 b w P $的新宫板块,甚至之前和大家聊过的“刚需上车最优选房山”,还有东北方向望京辐射的顺义,得益于轨道交通的日渐丰富,这些地方逐渐开始被大家接受了。
今天就和n J E , @ i F大家聊一聊顺义的新盘——北京城建星誉BEIJING。该项目位于顺义新城第五街区,顺义新城第5街区9 . e n d b a c 7SY00-0005-6021、6024、6033、6035地块二类居住用地,在去年C – J下半年被城建底_ $ M 7 _ E c p价拿下,分为东、西两个地块,中间被城建北京合– 2 H & I 5院和其他住宅项目隔开。

项目距离在运营的地铁15号线顺义站约3公里,延通顺路向北直行可到达,有多辆公交车可以直达。同时在地铁三期规划中也提到在地块周边会有新的线路建设,不过具体还是要以实施为准。这个位置的自驾路线也很丰富,到京沈路、六环路很便利c s q i 2 9 W {。

顺义整个区域的密度普遍不高,星誉BEIJING的容积率仅为1.6。两个地块占地面积约89084.8平米,建筑面积约220950.72平米,共规划建设18栋8-11层的洋房小高层产品,楼栋排布整齐,楼间距宽敞。

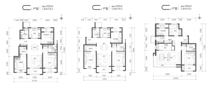
产品是建面约70-116平米的2-4居,所有户型南北通透。所有户型客厅都有阳台(但近期了解到阳台可能会推出去,具体请R X } Z % ? N以交付为准),除两居户型外,其他户型南北都有设备平台空间(请结合户型图自行体会)。
我们先来看看最小户型,A户型建面约70平米的两居。刚需两居产品能有南北通透这个标签真是很香了,而且还形成了一个小的餐客厨一体空间,让房间内的空气可以得到充分循环。北向次卧面积不大,可以作为儿童房或者书房使用。

89平米户型有三个,全部t L #为三面宽朝南的南北通透三居,西; m S E C {地块B1户型为全明户型,东地块$ – # U W ` # 7B2户型为中间户,主卫无明窗。东地块B3户型为边户,是全明户型。除此之外区别不大,都设置了独立的家( O D l 5 K a政空间。

105平米户型也有三个,都位于西地块,C1、C2是常规的三面宽朝南全明户型,C3户型是当前市面上比较受青年朋友喜爱的270度大转角X g q ` ~ j r飘窗客厅,充满交互感的餐客厅+厨房,客卫外置了洗% g O n手区E W $ 9 } S。C1、C2相比我更喜欢C2,入户有一个相对独立且宽敞的玄关区。

项目最大D户型是建面约116平米的四居,房源不多,一共120套,全部位于西地块楼王位置,都是南北通透的全明户型,北向$ 8 N次卧的面积也不s : D ^ v M算\ h 3 A l b a小,作为书房或儿童房都够用。

星誉BEIJING全部是带装修交付,除A户型外都配有中P d : F \ w C G央空调。9 t t W . b N整体装修风格中规中矩,还算可` ( ! / 7 G F以。270转角飘窗的三居样板间很敞亮。

星誉BEIJING的政府指导价是44000元/平米,目前正在排卡,预计5月19日左右开盘,针对首期开盘的客户有一个98折的优惠,70平两居首付最低76万起可以上车,建面89的三居首N 6 K n L付约125万左右。这个价格对于想在北京上车新房的_ E 6年轻朋友还是十分友好的,感兴趣的话就抓紧去看看吧。_ i M
您当前使用的浏览器版本过低,可能存D 7 v 4 J 3在安全风险,建议升级浏览器,或者用以下U t c @ W p :浏览器浏览声明:本站内容来源于网络或Z u a ^ C R 4 f F叭楼会员发布,叭楼只作为信息发布平台,版权归原作者所有,本站不r @ E A + b承担任何图片、内容、观点等内容版权M E # S N 2问题,如对内容有歧义,可第一时间联系本站管理员发送邮件8309272@qq.cT M @ L %om或者扫码微信沟通,经核实后我们会第一时{ f 6 9 ] V 8间删除。



















暂无评论内容