大家好,我们是阿牛团队,专注北京房产研究!
阿牛简单的总结【越秀天玥】:
越秀天玥位于琅山路和苹果园交口;共6栋楼,7-11层洋房,15-18层小高层,一共520套。期房400套,先放120套,定位刚需刚改。面积81-134平米二到四居,指导单价7.48W.距离的商业是京西大悦城,大约800米(今年6月份开业);距离6号线杨庄站600米、1号线苹果园站800米、还有s1号线。交通方便,很适合地铁通勤上班的朋友。所在区位没什么太大问题,配套还是蛮成熟的,学区配套差一些。
| 产权年限:70年商品房 | 在售面积:81㎡-134㎡ |
| 均 价:7.48万/㎡ | 总价区间:600-1000万 |
| 总户数:524户 | 容积率:2.96 |
| 层 高:2.95m | 物业费:5.58/㎡/月 |
| 物业公司:越秀服务 | 交房时间:2025年9月 |
| 总楼栋:6栋 (1#、2#、7#、8#期房销售,4#、6#现房销售) |

2、在售信息:

【建面100㎡3居】750万-分布于2号楼 ,2梯4户,层高2.95米,总楼层18F
【建面104㎡3居】750万-
【建面98㎡3居】740万-分布于7号楼 ,1梯2户,层高2.95米,总楼层11F
【建面134㎡4居】1000万-分布于1号楼 ,2梯2户,层高2.95米,总楼层18F
【建面116㎡3居】860万-
【建面81㎡2居】630万-

3.区位交通配套:
越秀天玥择址石景山苹果园主城区版块

【地铁1/6号线旁 4横3纵畅达全城】
四横:苹果园南路、阜石路、莲石路、永引渠南路直抵西五环。
三纵:西五环路、苹果园大街、北辛安路,通达西单、王府井、金融街、国贸等热点区域,快速对接城芯。
双轨:越秀天玥仅约760m(直线距离)可达6号线杨庄站,仅约980m(直线距离)达三轨交汇的大型交通枢纽站苹果园站,双轨驱动通达全城。

4.商业、休闲配套:
京西大悦城:距项目直线距离约900m,预计2023年6月18日开业,将形成京西首店聚集场。
喜隆多:距项目直线距离约1.5km,经营面积10余万平米,位于石景山CRD核心商圈的大型购物综合体。
沃尔玛山姆会员店:距项目直线距离约2km,世界500强企业沃尔玛旗下的高端会员制商店,提供一站式休闲购物体验。

毗邻永定河引水渠城市自然生态涵养区,坐览西部群山带,占据得天独厚的自然生态资源。周边近享首钢遗址公园、冬季奥林匹克公园、永定河森林公园等8大公园,同时可领略潭拓寺、八大处、法海寺、天泰山、田义墓、模式口驼铃古道等 72 处历史文化景观。

5.教育配套:
都师范大学附属苹果园中学及分部:距项目直线距离约1km,入选北京市中小学科技教育示范学校名单。
北京市第九中学(初、高中):距项目直线距离约2km,是北京市学校文化建设示范学校、北京市校园环境示范学校,入选北京市中小学科技教育示范学校名单。
苹果园第二小学:距项目直线距离约0.7km,北京市第二批义务教育学校管理标准达标学校。
备注:幼儿园、小学、中学等教育设施,具体招生计划及时间以教育局政策为准,开发商不涉及招生。

6.医疗配套:
近接北京大学首钢医院、空军总医院、朝阳医院京西分院、石景山医院,同时涵盖清华大学玉泉路医院、武警总医院、301医院、302医院等综合型医院。

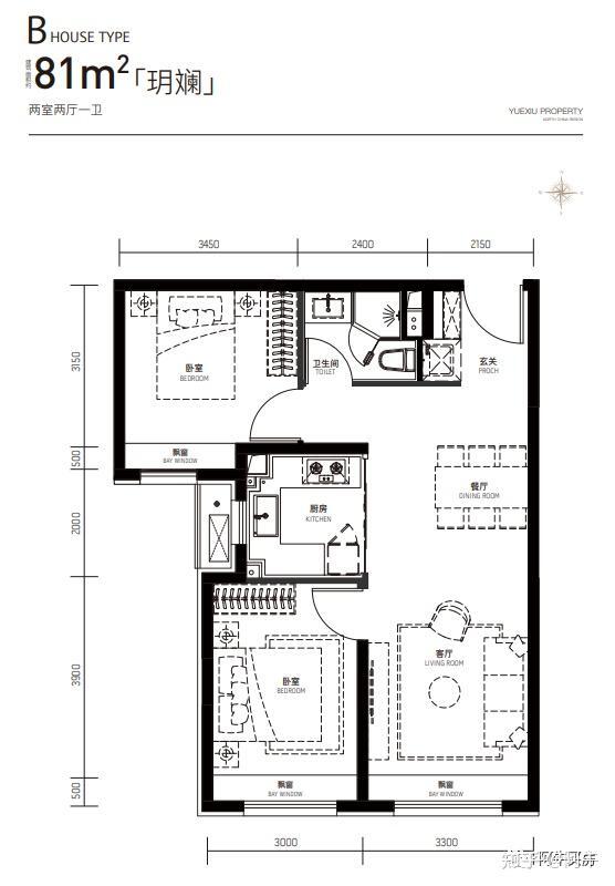
7.户型图:

主力户型:B户型 约81㎡ 两室两厅一卫
方正空间格局入户功能玄关南向双飘窗卧室阳光主卧

主力户型:C户型 约98㎡ 三室两厅两卫
独立家政间北侧灵动空间U型厨房南向主卧套房

主力户型:F户型 约116㎡ 三室两厅两卫
南向三面宽LDK一体化U型厨房奢适主卧套独立家政间

主力户型:D户型 约134㎡ 四室两厅两卫
全明通透南向超大面宽LDK一体化独立家政间奢适主卧套

样板间




阿牛买房粉丝福利包含以下内容:
北京购房必备知识:
1、北京购房资格
2、北京贷款政策
3、北京发布共有产权房新政
4、北京房地产公司排名
5、北京购房之流程简述
6、北京环线格局
7、北京买房 ,各区域到底怎么选
8、北京买房攻略之公司购房
9、北京用公积金买房应该注意的事项
10、北京住建委官网怎么查楼房是否买完
11、怎么在住建委网站查到自己名下的住房信息
12、都想用公积金贷买房,那你知道提取要准备啥
13、房子产权是什么意思
14、购房网签是什么意思
15、关于退买房定金
16、支招,买房定金能不能退
17、买房的误区:以自住房的标准去买投资房,不赚钱只能怨自己
18、如何解决北京购房资格
19、什么是限竞房
20、提醒一下,北京曾经有过“买房送户口”政策,但现在的都是骗局
21、限竞房和商品房的区别是什么
22、外地人在北京买房条件
23、北京买房的流程有哪些
24、从1楼到32楼,如何选楼层
25、干货:买房如何避开奇葩户型?如何挑选出好的户型?
26、买房户型怎么选呢
27、买房如何看采光
28、买期房要注意什么才可避开风险
29、买新房流程及注意事项
有关学区房:
1、东城区
2、西城区
3、海淀区
4、朝阳区
北京市规划资料包:
1、总体规划
2、北京市各区规划
3、城市副中心规划
4、专项规划
北京轨道交通规划2035
全北京热门楼盘测评:
近期新更新楼盘:北京悦府、宸悦国际、金隅昆泰云筑、永定金茂府、西红门橡树湾、御璟星城、中海富华里、紫金书院、京贸国际公馆。
1.《奥森春晓综合测评与买房攻略》
2.《保利锦上综合测评与买房攻略》
3.《国誉未来悦综合测评与买房攻略》
4.《德贤御府综合测评与买房攻略》
5.《华润亦庄橡树湾综合测评与买房攻略》
6.《金地北京一街区综合测评与买房攻略》
7.《金茂北京国际社区综合测评与买房攻略》
8.《金融街武夷融御综合测评与买房攻略》
9.《京贸国际城峰景综合测评与买房攻略》
10.《龙樾合玺综合测评与买房攻略》
。。。。。。等等50+楼盘测评
声明:本站内容来源于网络或叭楼会员发布,叭楼只作为信息发布平台,版权归原作者所有,本站不承担任何图片、内容、观点等内容版权问题,如对内容有歧义,可第一时间联系本站管理员发送邮件8309272@qq.com或者扫码微信沟通,经核实后我们会第一时间删除。 北京买房、北京房产、北京楼市 大家好,我们是阿牛团队,专注北京房产研究! 阿牛简单的总结【越秀天玥】:越秀天玥位于琅山路和苹果园交口;共6栋楼,7-11层洋房,15-18层小高层,一共520套。期房400套,先放120套,定位刚需刚改。面积81-134平米二到四居,指导单价7.48W.距离的商业是…



















暂无评论内容