本期看点:
1、 本周土拍继续X47地块虽香跟你有关系吗?
2、 西红门橡树湾三期即将来袭改善户型依然是主流,想买小户型的要抓紧。
3、 朱辛庄大华7月入市房源不多还是要靠抢。
4、 中建璞园户型图曝光超高得房率成亮点,刚需你纠不纠结?
5、 已购共产房交易细则出台,监管到位房住不炒绝对是认真的
距离上半年结束已经没剩几周了,您的购房计划提上日程了吗?
来咱们接着回顾下上周的京楼热点
本周即将拍卖的亦庄X47地块是最近讨论的热点之一,亦庄现在高品质的二手房已经卖到了10万+,自然X47地块7.7万的指导价就成为了关注的焦点。

上周我跟几个圈里的朋友聊天大家得到消息是X47地块对标边上的京叁,将来大概率还是会以大面积段的改善产品为主,当年京叁卖的时候一共998套房户型面积段168-240平米。
而X47地块纯商品建面175349平米,假如我们按照1000套房源计算,平均户型面积175平米,按照7.7万指导价计算平均总价也要1347万起步,即便出点小的总价至少也会是千万起步,所以X47虽香但跟您有没有关系,还要问问兜里的钱。
接着我打听了一下南城西红门橡树湾一期二期以及即将出来的三期情况,从售卖来看一期网签已经过了1000套以上,截止上月末网签率66%,二期的房源明面上截止上月末192套,我跟业务员求证了下实际订房的人比这个要多很多,至少三分之二多的业主还没网签,目前就剩一栋完整的3号楼107户型大概60套,剩下的都是1-4层和顶层房源了,所以基于二期的产品及售卖情况,三期产品100平米以上依旧是主流,107、128、148、168的户型会占到总房源套数的90%以上,剩下10%会配有少量小户型产品如果您想买小户型的还是要尽早,留给你购买的机会不多了。另外二期没有选到好楼层好位置的朋友也别着急,三期咱还可以接着选只不过单价会不会涨就不好说了。
然后是北边朱辛庄大华那块地我也打听一下,产品据说是80-120平米左右依然走中小套型路线,预计7月会释放消息,售楼处和样板间会在7月底8月初出来,房源一共就300多套,据说产品是对标星樾做的而且在细节上可能会比星樾更好点,再有咱先不管产品是真好假好,就冲朱辛庄的位置房源又只有300多套,以及参考星樾之前期房468套的售卖情况,您觉得会难卖吗?
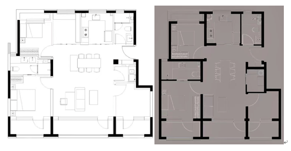
朝阳前苇沟的中建璞园上周也流出几张户型图的过程稿,之前我就说过一个本该做改善产品的板块现在也开始向刚需下手了,而且这回还是下死手,那户型图设计的是前凸后翘,一共四种户型我看了一下72和87的户型做了南北通透的两面宽设计

98和120的户型是南北通透三面宽设计。

尤其是98那个户型虽然户型图上没有标尺寸,但从视觉感官上来看客厅面宽是真不小,将来再把前后两部分修修改改敲敲砸砸,这得房率能奔着90以上去了,这样的产品你说谁看了不迷糊,唯一的问题是这地方不临铁,你说这让刚需是不是挺纠结,假如这个产品要是能放在现在的小红门那就完美了。
最后咱们看看共产房的消息,上周住建委的页面挂出了关于加强已购共有产权住房管理
有关工作的通知。

这次终于把共产房将来如何进行二次交易的事情仔细的说了一遍,大概有如下几个方面:
1、患大病等导致家庭生活困难确需转让房屋产权份额的,产权人应当向房屋原分配区住房行政管理部门提出申请,审核通过后由共同签约的代持机构回购
2、办理回购。代持机构与产权人签订回购协议后于30个工作日内支付回购款。代持机构回购价格按照原购房家庭购买价格并考虑折旧和物价水平等因素确定
3、已购共有产权住房家庭取得不动产权证书满5年的,可按市场价格转让所购房屋产权份额,共有产权住房转让信息面向社会发布后,房地产经纪机构方可为其代理买卖经纪业务
4、符合共有产权住房购买条件的家庭,可在转让信息发布期间,登录服务平台如实申报家庭人口、户籍、婚姻、住房等情况,并填报拟购房屋产权份额的意向购买价格,代持机构在3个工作日内同意以出售家庭填报的出售价格回购的,可行使优先回购权,服务平台终止其他家庭购买意向登记,并通知已登记家庭
5、新购房人获得房屋产权性质仍为“共有产权住房”,所占房屋产权份额比例不变
6、申请变更签约家庭提交原购房合同、身份证件、变更合同申请书、婚姻证明材料(离婚证、离婚协议、生效的法院离婚裁判文书或结婚证等)、死亡证明、继承证明材料(继承公证书、继承生效法律文书)、原签约人一致意见等材料
如经审核申请变更签约家庭不符合共有产权住房购买条件,应由出卖方按照购房合同的约定进行处理
7、共有产权住房购房人及其家庭成员,存在违规出租等违规行为且拒不改正的,暂停办理回购和上市手续
8、代持机构回购的共有产权住房继续面向符合共有产权住房购买条件的家庭配售,在保持产权份额比例不变的基础上,应委托房地产估价机构参照同地段、同品质普通商品住房对回购房屋再次配售价格进行评估,按照评估确定的价格再次配售,同一项目房源可每两年评估一次。
总的来说就是把流程和细则都告诉你了,买来住可以将来卖也可以但是必须在我监管范围内,至于你想靠他挣点钱不好意思不可以。
说实话这规则定的我挺佩服的,真的是将房主不炒进行到底。
好了各位怎们下期见
您当前使用的浏览器版本过低,可能存在安全风险,建议升级浏览器,或者用以下浏览器浏览声明:本站内容来源于网络或叭楼会员发布,叭楼只作为信息发布平台,版权归原作者所有,本站不承担任何图片、内容、观点等内容版权问题,如对内容有歧义,可第一时间联系本站管理员发送邮件8309272@qq.com或者扫码微信沟通,经核实后我们会第一时间删除。



















暂无评论内容